Se vende duplex de 243 m en getxo
Anuncio ID: #818867
Publicado el: 12-05-2016
Ver anuncios de multibreves
Contacto
- Tipo de venta:Venta
- Estado:Excelente
856 000.00 €
Descripción
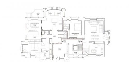
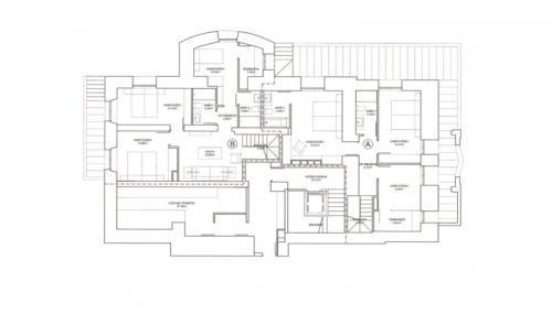
ULTIMOS PISOS!!! Se vende planta baja duplex en Neguri. Obra nueva. Es una Villa palaciega de principios del siglo XX totalmente rehabilitada, segregada en 8 viviendas. Tiene una superficie de 243 m2 construidos, distribuidos en 4 habitaciones, 4 baños, salón comedor y cocina totalmente equipada con electrodomésticos de alta gama. Dispone de 2 plazas de garaje y trastero. En la planta jardín se encuentra 1 dormitorio con el cuarto de baño incorporado, 2 dormitorios más con salida al porche y otro cuHabitaciones: 4
Superficie: 243 m2
Página web:






